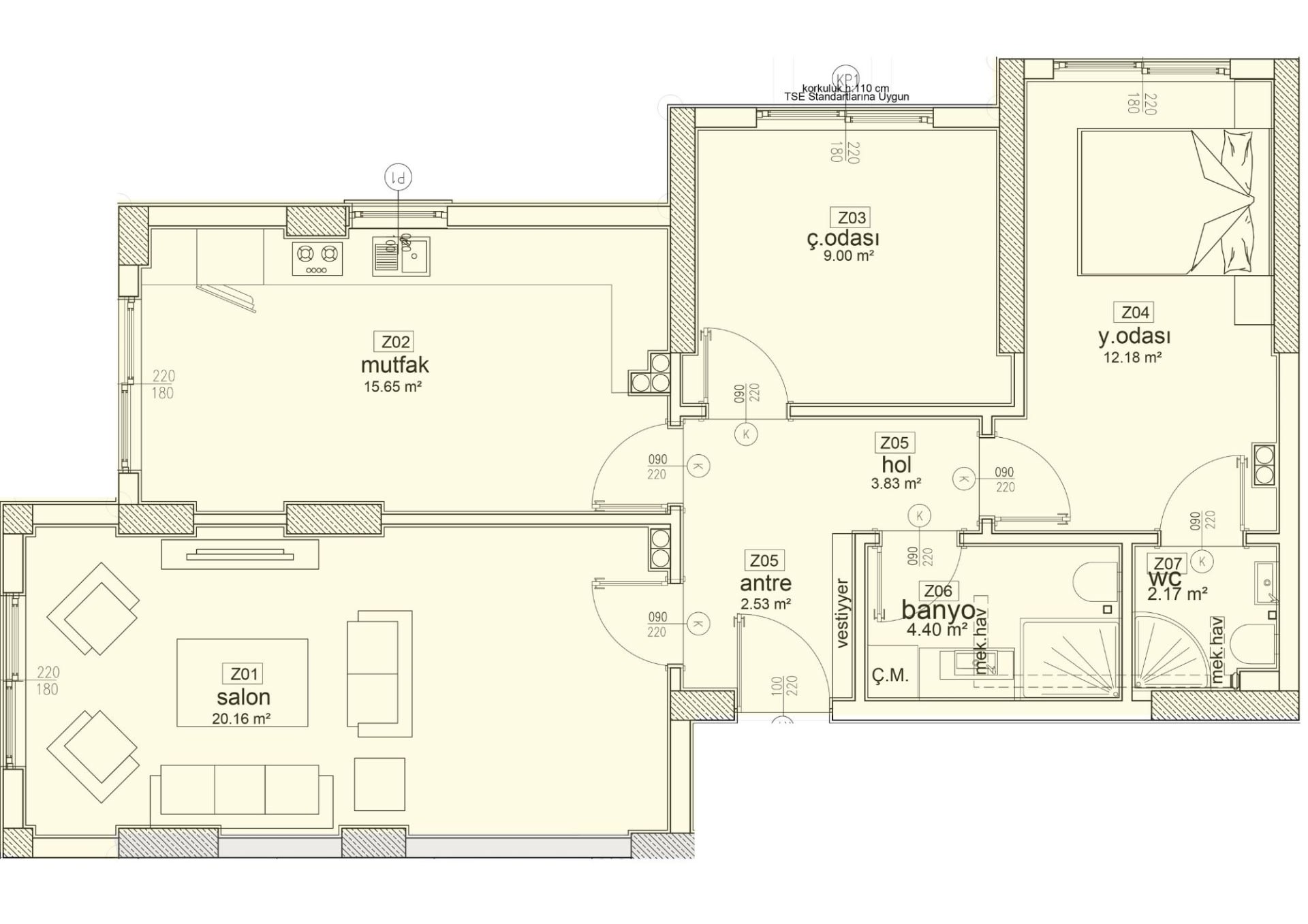
DAİRE - No: B3THE CADDEBOSTAN PROJECT
Işıklı
DAİRE
Satış Fiyatı
Fiyat Sorunuz
Brüt Alan
118 m²
Oda Sayısı
3
Banyo
B2
Bölüm Detayları
BAHÇE: 40 M², VESTİYER, GİYİNME ODASI, EBEVEYN BANYOSU, KAPALI MUTFAK
Özellikler
Ebeveyn Banyosu
Dubleks / Çatı Katı


