PlanSizin
    Plansizin LogoPlansizin Logo
    Ana Sayfaİlanlar
    Tüm İlanlar/THE CADDEBOSTAN PROJECT/Bölüm A24

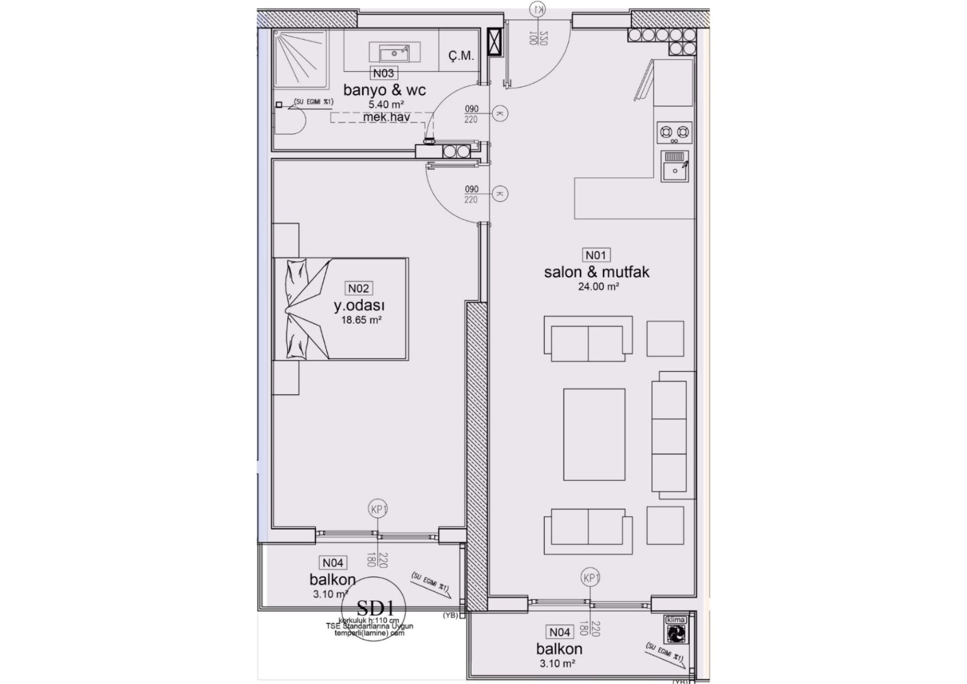
    DAİRE - No: A24
    THE CADDEBOSTAN PROJECT

    Işıklı
    DAİRE
    Satış Fiyatı
    Fiyat Sorunuz
    Bölüm A24
    Görsel 2
    Brüt Alan
    100 m²
    Kat
    3. Kat
    Oda Sayısı
    2
    Banyo
    B1

    Bölüm Detayları

    2 BALKON

    Özellikler

    Ebeveyn Banyosu
    Dubleks / Çatı Katı
    Balkon (6.2 m²)

    İletişim

    Satış Ofisi
    Ahmet Özsoy İnşaat
    Hemen AraMesaj Gönder
    Projeye Geri Dön