PlanSizin
    Plansizin LogoPlansizin Logo
    Ana Sayfaİlanlar
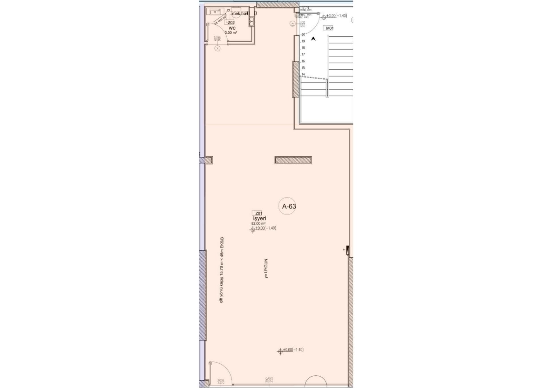
    Tüm İlanlar/THE CADDEBOSTAN PROJECT/Bölüm A63

    DUKKAN - No: A63
    THE CADDEBOSTAN PROJECT

    Işıklı
    DUKKAN
    Satış Fiyatı
    Fiyat Sorunuz
    Bölüm A63
    Brüt Alan
    102 m²
    Oda Sayısı
    1
    Banyo
    B1

    Bölüm Detayları

    BAHÇE: 70 M²

    Özellikler

    Ebeveyn Banyosu
    Dubleks / Çatı Katı

    İletişim

    Satış Ofisi
    Ahmet Özsoy İnşaat
    Hemen AraMesaj Gönder
    Projeye Geri Dön